Leather Worker
 
Home MC&SC MC&SC Archive
 
The Start
February 2013
 
Introduction
 
Photo Gallery
 
Community Spirit
 
Village Hall
 &  Pavilion
 
Facilities
 
MUGA
 
Affordable Housing
 
Site Layout
 
Owning Facilities
 
Environment &
Sustainability
 
Layout & Pitches
 
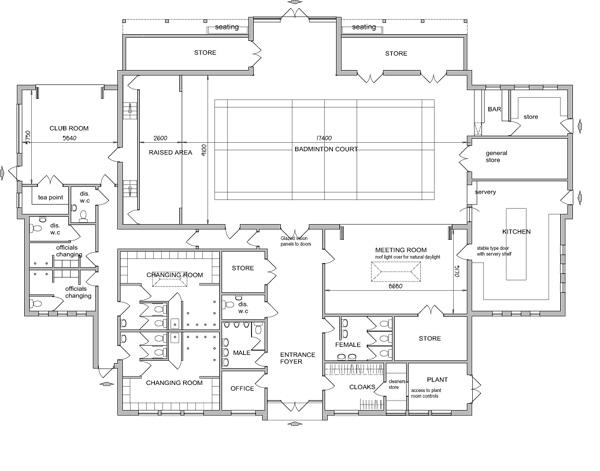
Hall Floor Plan
 
Hall Elevations
South, North, East, West
 
Private Housing
Artist's impressions
 
Floor Plans
Plots 1-14
 
Street Scene
 
All documents in
PDF
 
News Updates
 
Hall Floor Plans


   
To contact the Steering Committee -
 
© Manuden Parish Council Designed by Hosted by RDA