Leather Worker
 
Home MC&SC MC&SC Archive
 
Exhibition 2012
 
Introduction
 
Community Spirit
 
Village Hall
 &  Pavilion
 
Facilities
 
MUGA
 
Affordable Housing
 
Site Layout
 
Owning Facilities
 
Environment &
Sustainability
 
Layout & Pitches
 
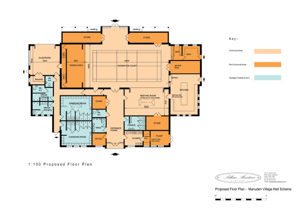
Hall Floor Plan
 
Hall Elevations
South, North, East, West
 
Private Housing
Artist's impressions
 
Floor Plans
Plots 10-14
 
Street Scene
 
Exibition Material
PDF (906 KB)
 
News Updates
 
Hall Floor Plans


   
Download PDF Version
   
Previous Next
To contact the Steering Committee -
 
© Manuden Parish Council Designed by Hosted by RDA